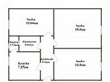
Kisvácon eladó egy 66 nm-es, magasföldszinti, 3 szobás lakás, amely ideális választás lehet családoknak vagy befektetőknek egyaránt. Az ingatlan jó elosztású, tágas helyiségekkel rendelkezik, és az elmúlt években több fontos felújításon is átesett.
A teljes villamoshálózat 5 évvel ezelőtt megújult, így műszaki szempontból biztonságos és korszerű. A fűtést többféle megoldás biztosítja: gázkonvektor, hangulatos cserépkályha, valamint egy hűtő-fűtő klíma is rendelkezésre áll. Jelenleg egy szobában található klíma, de a többi helyiségben a kiállások már elő vannak készítve.
A lakás része egy gépiesített konyhabútor, valamint új nyílászárók kerültek beépítésre redőnnyel ellátva, amelyek hozzájárulnak a komforthoz és az energiahatékonysághoz.
Az ingatlanhoz tartozik egy külön, 8 nm-es tároló is, amely praktikus megoldást nyújt a pakoláshoz. A környék ellátottsága kiváló: mindössze 5 perc sétára található egy ABC kisbolt, így a mindennapi bevásárlás könnyen megoldható.
Kérdésével, illetve megtekintési szándékával keresse irodánkat. Amennyiben hitelre lenne szüksége új otthonának megvásárlásához, profi hitelközvetítő kollégáink díjmentesen állnak rendelkezésükre.
Amennyiben eladásra lenne szükségük a vásárláshoz, irodánk egész Vác területén ingyenes értékbecslést vállal.
Alapterület: 66 m2
Szoba: 3
Közös költség: 9600 Ft/hó
Belmagasság: 265 cm
Építés éve: 1980
Hall: Nincs
Alkóv: Nincs
Tároló: Van
Kertkapcsolat: Nincs
Állapot: Közepes állapotú
Épület állapota: Közepes állapotú
Tájolás: Dél-Nyugati
Emelet: Magasföldszint
Épület szintjei: 3
Tetőtér: Nem tetőtéri
Komfort: Összkomfortos
Lift: Nincs
Parkoló: Utcán, közterületen
Kilátás: Utcai
Fűtés: Gáz (konvektor)
Szigetelés: Nincs
2600 Vác, Március 15. tér 15..
Add meg elérhetőségeidet és kollégáink hamarosan felveszik veled a kapcsolatot.
© 2019-2026 Tecnocasa | Minden jog fenntarva!