• Bejelentkezés

    |

Eladó lakás XVII. kerület, Rákoskeresztúron

Budapest, XVII. kerület, Rákoskeresztúr

Eladó lakás / Panel
ELADÓ 59.900.000 FT € 157.404
Ft-os árfolyamon átszámítva

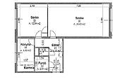
XVII. KERÜLETBEN: RÁKOSKERESZTÚRON, KASZÁLÓ UTCÁBAN, ELADÓ EGY II EMELETI, 54 M2-ES, KÖZEPES ÁLLAPOTÚ, ERKÉLYES, 2 SZOBÁS LAKÁS. A LAKÁSHOZ KÖZEL TALÁLHATÓ A RÁKOSPATAK, MELY MENTÉN KELLEMES SÉTÁKRA ÉS BICIKLIZÉSRE IS LEHETŐSÉG NYÍLIK.

A LAKÁS JELLEMZŐI:
A nyílászárók minden helyiségben ki lettek cserélve, redőnnyel el lettek látva.
A konyha, világos, nagy ablakkal ellátott.
A fürdőszoba kádas, a mellékhelyiség külön lett kialakítva.
Minden helyiség járólappal burkolt.
A konyhabútor és a beépített bútorzat a vételár részét képezi.
ELRENDEZÉS:
nappali, hálószoba, konyha + étkező, kádas fürdőszoba, mellékhelyiség, előszoba, közlekedő, erkély.

A KÖRNYÉK ÉS A KÖZLEKEDÉS:
Közelben, pár perc sétára található bevásárlási lehetőség, piac, gyógyszertár, bölcsőde, óvoda, iskola, játszótér, uszoda. A lépcsőház folyamatosan karbantartott, rendezett lakóközösséggel rendelkezik. A közelben a következő tömegközlekedési lehetősége elérhetőek:
161 A, 46, 97 E, 161, 161 E, 162, 162 A, 169 E, 195, 198, 202 E, 261 E, 262 buszok, valamint a 956, 990, 998 éjszakai járatok.

IRÁNYÁR: 59.9 M Ft.
Banki finanszírozással is megvásárolható!
VEVŐINK RÉSZÉRE A KÖZVETÍTÉS DÍJTALAN!
A hirdetésben szereplő adatok tájékoztató jellegűek.

Tulajdonságok
  • Alapterület: 54 m2

  • Erkély: 3 m2

  • Szoba: 2

  • Közös költség: 14810 Ft/hó

  • Állapot: Közepes állapotú

  • Épület állapota: Közepes állapotú

  • Emelet: 2

  • Épület szintjei: 4

  • Komfort: Összkomfortos

  • Lift: Nincs

  • Parkoló: Utcán, közterületen

  • Kilátás: Parkra néző

  • Fűtés: Távfűtés

  • Szigetelés: Nincs

Iroda
Tec 17 Ingatlan Kft.

Elhelyezkedés
Kapcsolatfelvétel
Érdekel a hirdetés?

Add meg elérhetőségeidet és kollégáink hamarosan felveszik veled a kapcsolatot.

Üzenet küldése

© 2019-2026 Tecnocasa | Minden jog fenntarva!