• Bejelentkezés

    |

Eladó ház Budakalászon

Pest megye, Szentendrei járás, Budakalász

Eladó ház / Családi ház
ELADÓ 124.900.000 FT € 325.642
383.55 Ft-os árfolyamon átszámítva

BUDAKALÁSZON A VÁROSKÖZPONTBAN ELADÓ EGY ÚJÉPÍTÉSŰ CSALÁDI HÁZ!

KÖRNYÉK:
A H5-ös HÉV megálló csupán 6 perc sétára, 450 méterre található, valamint a központi elhelyezkedése lehetővé teszi számos bevásárlási lehetőség, mint például kisboltok 7 perces, de az Auchant is csak 16 perces könnyű megközelítését sétálva. Ezen felül a Kalász Suli Általános Iskola csak 6 percre (450 méterre) található, míg a Nyitnikék Óvoda 9 perc sétával (700 méter) közelíthető meg.

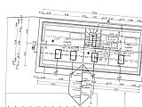
A HÁZ JELLEMZŐI:
-Telek mérete: 200 nm
-A ház hasznos alapterülete: 90 nm.
-2026 januárban kerül átadásra, 30-as porotherm réglából épült, grafitos szigetelést kapott.
-A tetőt kerámiacserép fedi.
-3 rétegű fa nyílászárók.
-A fűtésről hőszivattyú gondoskodik, padlófűtéssel.
-Plusz hűtő-fűtő klíma is kialakításra került.


FINANSZÍROZÁS:
-Tehermentes, banki finanszírozással is megvásárolható, melyben irodánk ingyenes tanácsadással áll rendelkezésükre! VEVŐINK RÉSZÉRE A KÖZVETÍTÉS DÍJTALAN! A hirdetésben szereplő adatok tájékoztató jellegűek!

Tulajdonságok
  • Alapterület: 90 m2

  • Telekterület: 200 m2

  • Szoba: 4

  • Építés éve: 2025

  • Állapot: Új építésű

  • Épület szintjei: 2

  • Tetőtér: Beépített

  • Komfort: Duplakomfortos

  • Parkoló: Telken parkoló

  • Kilátás: Kertre néző

  • Pince: Nincs

  • Fűtés: Hőszivattyús fűtés

  • Szigetelés: Van

Iroda
BERMUDA OFFICE Kft.

Elhelyezkedés
Kapcsolatfelvétel
Érdekel a hirdetés?

Add meg elérhetőségeidet és kollégáink hamarosan felveszik veled a kapcsolatot.

Üzenet küldése

© 2019-2025 Tecnocasa | Minden jog fenntarva!